Continuing the Tradition of Student Rowing in Mainfranken
Im Jahr 1875 war die Gründung des Würzburger Rudervereins (WRV).
Studenten gründeten den Akademischen Ruderclub im Jahr 1905.
Die Universität baute ihr Bootshaus im Jahr 1951.
In 1875, the Würzburg Rowing Club (WRC) was founded. Students officially started the Academic Rowing Club Würzburg in 1905. The university built their own boathouse in 1951.
TRADITION - HEALTH & FITNESS - CHAMPIONSHIPS - RECREATION
BOATHOUSE - ROWING PROGRAM - GIVE AWAYS - SPONSORING
Challenge
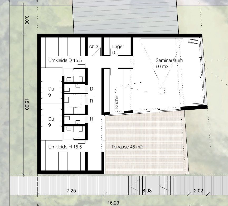
As a popular place for rowing, training and socializing, this boathouse has served as a meeting and educational destination for students over the decades. This familiar and cozy building has unfortunately served its day. With the support from athletes, outdoor as well as health and fitness enthusiasts from around the world, we plan to build a new multipurpose boathouse able to carry this wonderful and meaningful tradition on into the future.
Like many other athletes, rowers are especially known for their mutual support and camaraderie, ready to help other rowing buddies in need. We are counting on this camaraderie to spearhead this initiative.
Zusätzlich starten wir eine globale Crowdfunding-Aktion innerhalb der nächsten Wochen. Um den Starttermin dieser Aktion zu erfahren, besuchen Sie unsere Website: fv-sport-uni.org
To do this, we are launching a global crowdfunding action within the next few weeks. To find out about the launch date, fill out the form above or send us an E-Mail at: fv-hochschulsport@uni-wuerzburg.de.
Our goal: 1 million Euros
The success of crowdfunding depends on how big the network is.
We urge the entire rowing community to inform all their friends and family members.
Together can we make this possible.
Construction Costs and Schedule
The construction cost calculation was made by a professional and regionally well-known architecture firm.
After the successful crowdfunding action, the construction plan is organized into five phases over two years.














