Crowd-Funding Projekt: Studentische Rudertradition Mainfranken
Die Bauplanung
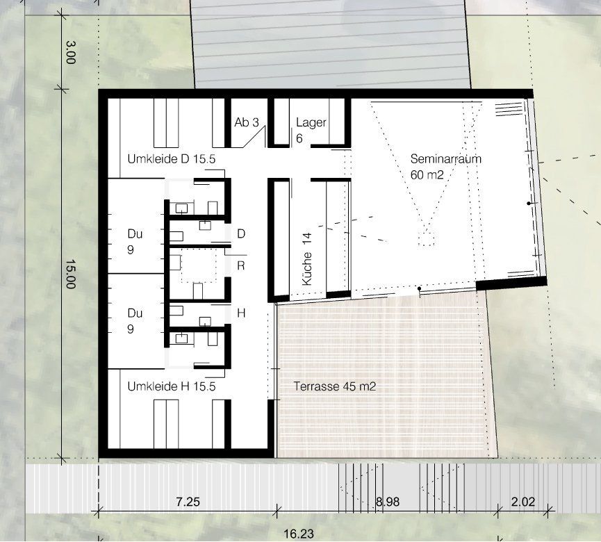
Das Raumvolumen des neuen Gebäudes wird 20 Prozent größer sein und damit mehr Platz für die Boote und ein modernes variables Lagersystem haben. Ein großer Mehrzweckraum mit einer integrierten Kücheneinheit dient als modern ausgestattete Bildungsstätte und gleichzeitig als Anlaufstelle für gesellige Veranstaltungen. Die praktische Anordnung der sanitären Anlagen ermöglicht ein reibungsloses Nebeneinander von Ruderausbildung und Theorie-Veranstaltungen.


Moderne Ausstattung
Wegen seiner Lage in einem ruhigen und attraktiven Umfeld mit einem herrlichen Ausblick auf das Ruderrevier besitzt das Bootshaus eine hohe Integrationskraft und eignet es sich mit einem großen multifunktionalen Aufenthaltsraum und integrierter Kücheneinheit und Terrasse als Tagungsstätte für alle Arten von Veranstaltungen.



Eine Million Euro für das Neue Bootshaus,
das scheint auf den ersten Blick sehr viel für das Gebäude. Die Budgetplanung ist von einem renommierten Architekturbüro so geschätzt, um eine Überziehung des Budgets zu verhindern bei nicht vorhersehbaren Mehrkosten. Allein die Brandschutzbestimmungen und die Vorkehrungen gegen Hochwasser sind sehr kostenintensiv.
Der Bauplan umfasst fünf Phasen innerhalb von ca. zwei Jahren.



Das Projekt erfordert einen fachlichen Plan über die folgenden Meilensteine:
1. Endgültiger Bauplan und Kostenschätzung
2. Genehmigung durch die Zuständigen Behörden
3. Abriss des alten Gebäudes
4. Bauphase
5. Abschlussphase
Genehmigung durch die zuständigen Behörden
Der Genehmigung eines neuen Bootshauses durch die Behörden steht grundsätzlich nichts im Wege. Das Gelände am Main dient ausschließlich der Ausübung von Ruder- und Kanusport.
Ein Pachtvertrag mit der Stadt und dem angrenzenden Akademischen Ruderclub Würzburg sichert die Nutzung des Geländes zunächst bis zum Jahr 2040.
Grundstück
Bei dem Grundstück entstehen keine Kosten. Es ist Eigentum der Stadt und steht ausschließlich dem Rudersport zur Verfügung.
Abriss des alten Gebäudes
Der Abriss des alten Gebäudes wird auf 25.000 € geschätzt und kann innerhalb von zwei Monaten vollzogen werden. Während dieser Zeit ist die Lagerung der vorhandenen Boote und des weiteren Equipments gesichert. Das bestehende Betonfundament scheint stabil genug zu sein, um Teil des neuen Fundaments zu werden. Dies reduziert die Abrisskosten beträchtlich. Anschlüsse von Wasser, Gas und Strom sind bereits vorhanden, sodass die Anschlusskosten gering bleiben.
Erdgeschoss Bootslager
Das Erdgeschoss ist ein reines Bootslager, um möglichst viele Boote, Ruder und anderen Zubehör lagern zu können. Deshalb wird auf eine Werkstatt in diesem Bereich verzichtet. Größere Reparaturen werden in der Werkstatt des Sportzentrums der Universität durchgeführt.
Die Baukosten für das Untergeschoss, indem sich das Bootslager befindet, belaufen sich auf 360 € pro Kubikmeter, obwohl das ganze Untergeschoss ausschließlich der Lagerung der Boote dient. Weil das Gebäude in einem Hochwassergebiet nahe am Fluss liegt, ist es so geplant, dass das Hochwasser so ein- und ausströmen kann, dass kaum Schaden entsteht. Die Kosten der Bootslager belaufen sich auf 20.000 € einschließlich des Zubehörs und Materials. Zur Lagerung der Boote dient ein modulares Aufhängesystem, das sich je nach Bedarf vertikal und horizontal verstellen lässt.
Im Vergleich zur alten Bootshalle haben wir die Höhe der Bootshalle um 60 cm auf 3,20 m gesteigert, um so fünf Boote übereinander lagern zu können. Wir erweitern damit das Raumvolumen um 20 Prozent.
Da das Bootshaus am Flussufer im Hochwassereinzugsgebiet liegt, bestehen die Außenwände der Bootshalle aus einem Stahlgittersystem, sodass eingedrungenes Wasser problemlos wieder ablaufen kann.
Die Tore Richtung Fluss lassen sich seitlich nach außen wegklappen, sodass sie keinen Platz vom Innenraum beanspruchen.
Obergeschoss
Die Kosten für das Obergeschoss sind mit 550 € pro Kubikmeter kalkuliert. Weil diese etwas höher geschätzt sind als beim Industriestandard üblich, gewährt dies sowohl dem Architekten als auch der Baufirma genügend Flexibilität beim Kauf von Materialien und verhindert eine Überziehung des Budgets.
Das Obergeschoss wird in seiner Funktionalität den Anforderungen des praktischen Rudersports gerecht mit Umkleiden, Duschen und Toiletten, die von zwei Außentüren durch einen Zugang erreicht werden. Veranstaltungen im großen Mehrzweckraum mit anschließender Terrasse werden bleiben dadurch ungestört.
Der Mehrzweckraum mit einer Größe von ca. 60 m² mit der entsprechenden Infrastruktur für Lehrveranstaltungen kann vielseitig genutzt werden:
Seminare für den Rudersport, Symposien oder Tagungen einzelner Gremien aus den Fakultäten der Universität.
Als Begegnungsstätte für Alumni und andere Gäste des Sportzentrums und der Universität bietet er sich an, weil das Bootshaus in einer grünen Oase inmitten der Stadt liegt. Von der Terrasse aus fällt der Blick durch die große Glasfront des Raumes auf den Main, ein wunderschönes Stück Natur in einem attraktiven Umfeld.
Durch eine Küchenzeile ist die Versorgung kleiner Gruppen mit Getränke und einem Imbiss ebenso möglich wie Catering für große Gruppen.
Ein zweiter Plan sieht eine Terrasse auf dem Flachdach vor, sodass der Mehrzweckraum von 60m² auf 100 m² erweitert werden kann. Dieser Plan jedoch erfordert zusätzliche Argumente und könnte weitere Kosten verursachen.
Die Baunebenkosten werden auf annähernd 165.000 € geschätzt. Das ist der vom Architekten empfohlene Industrie-Standard.
Erreichbarkeit des Bootshauses
Ein Eingang zum Bootshaus befindet sich an der Uferpromenade der Mergentheimer Straße. Das Bootshaus ist mit öffentlichen Verkehrsmitteln, den Linien 3 und 5, gut erreichbar und somit unmittelbar an das Stadtzentrum und den Bahnhof angebunden. Der Eingang ist nur wenige Meter von der Straßenbahnhaltestelle „Judenbühlweg“ entfernt.
Das Haus kann auch vom Rudergelände aus betreten werden. Leider gibt es dort keine Parkmöglichkeiten. Ein größerer kostenloser Parkplatz befindet sich in ca. 200 m Entfernung, Richtung Süden, in der Nähe des Mainufers.
